🗃 #ArquiTemas . 👁 partes que integran una chimenea... . 📌 #Arquitectura #Ingeniería #Construcción #Albañilería #Diseño #Chimeneas
image size: 1154x1440
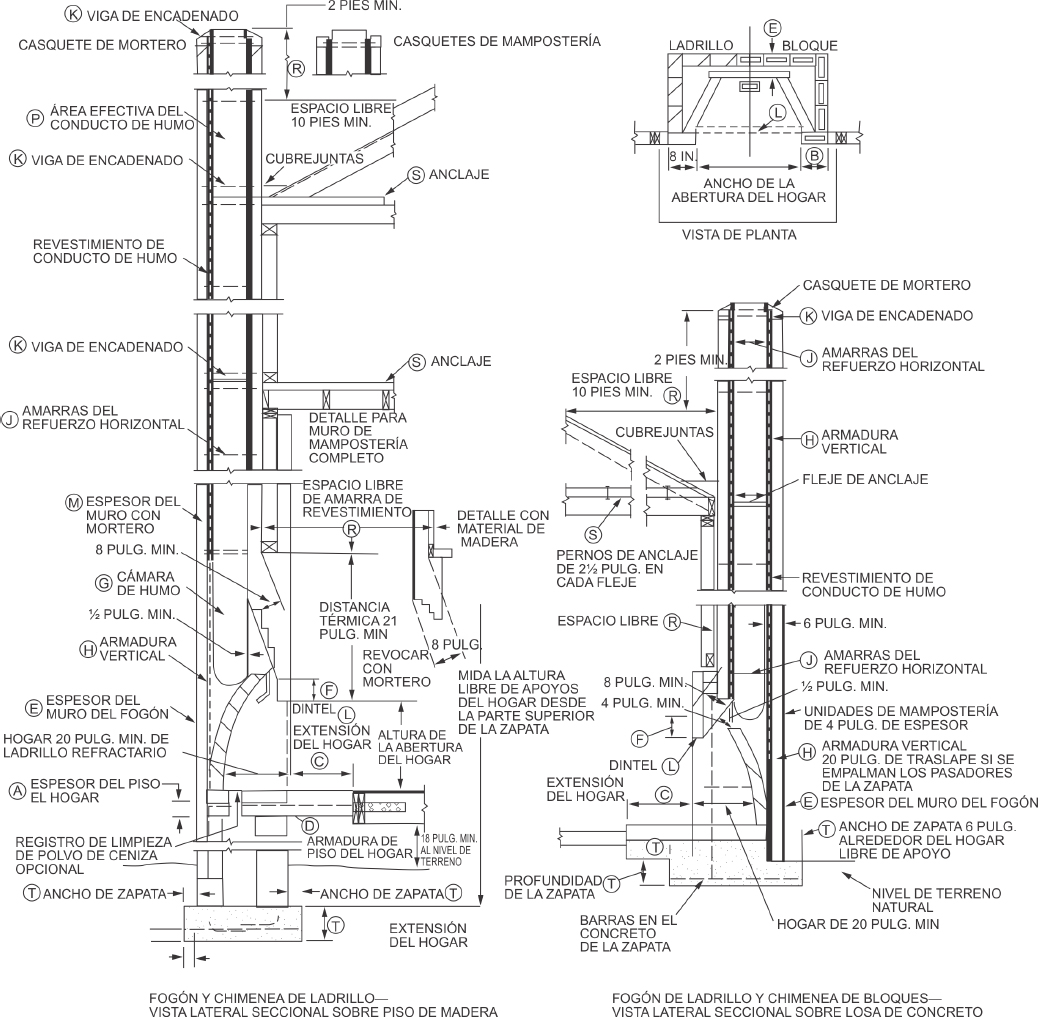
CAPITULO 10 CHIMENEAS Y HOGARES - 2021 INTERNATIONAL RESIDENTIAL CODE SPANISH EDITION (IRC)
image size: 1038x1017
Cómo construir una chimenea: 9 Pasos (con imágenes)
image size: 1200x900
Cómo hacer una chimenea en casa
image size: 1080x1920
Diseños De Chimenea Con Ladrillo | TikTok
image size: 1080x1920
Elementos de una chimenea 🔥
image size: 1280x1920
Chimenea exterior de veranda
image size: 1490x2400
Medidas de chimenea que debes considerar ✓✍️
image size: 1440x1798
Hogar MAGNUM® de Isokern® y sistema de chimenea DM
image size: 1024x1536
Hogar STANDARD® de Isokern® y sistema de chimenea DM
image size: 1080x1920
Diseños De Chimenea Con Ladrillo | TikTok
image size: 768x1024
Proceso de Reproducción de Piedra Seca en Chimenea
image size: 1240x2400
Guía de Construcción de Chimeneas | PDF | Chimenea | Ladrillo
image size: 1440x1800
Chimenea exterior de veranda
image size: 1080x1920
Estufa de mampostería - Wikipedia, la enciclopedia libre
image size: 1080x1920
🔥 ¿Sabías cómo funciona una chimenea por dentro? 🔥, Detrás de ese fuego acogedor hay todo un sistema ingenioso., El calor nace en la hoguera, las cenizas bajan al cenicero, y el humo viaja por el ...
image size: 1650x2048
Chimeneas De Ladrillo Rusticas Para Sala | TikTok
image size: 3024x4032
🔥🏡 El secreto mejor guardado de la calefacción inteligente (sin electricidad) Lo que ves en esta imagen NO es una simple estufa… es una máquina térmica doméstica que convierte leña en calor
image size: 2736x2052
Mi primera publicación aquí! Nuestra chimenea de mampostería con calefacción radiante. Nunca más estaré sin una en estas frías noches de invierno. : r/woodstoving
image size: 768x1154
Qué te parece mi estufa de mampostería?! : r/woodstoving
image size: 4032x3024
Materiales para su chimenea de exterior | Inspiración de diseño | Unilock
image size: 1080x1920
Cómo modernizar esta chimenea : r/Renovations
image size: 2560x1707
Como Hacer Un Chimenea Con Ladrillo Con Pulmon | TikTok
image size: 1080x1440
Qué es el tapajuntas de techo? - IKO Content Hub
image size: 3024x4032
Exponiendo la pared de piedra detrás de la estufa de leña. : r/stonemasonry
image size: 2560x946
Me he montado un revestimiento de chimenea de piedra apilada. : r/DIY
image size: 1290x1715
Cómo pintar una chimenea de ladrillos | Benjamin Moore
image size: 1280x720
Qué opinan de una chimenea de ladrillo a la vista como pared decorativa? : r/DIYUK
image size: 2389x2230
Transforma tu hogar! Construye una chimenea de leña paso a paso
image size: 1445x1863
Es esto peligroso? : r/DIY
image size: 768x1024
Chimenea Serie Contractor de 48\
image size: 2752x1536
Cómo Hacer Una Chimenea de Ladrillos | PDF | Ladrillo | Hogar
image size: 2804x2804
Qué es una caja de fuego? Guía completa de componentes y mantenimiento de la chimenea | Sefle
image size: 2757x4031
Repisa de chimenea rústica de esquina - Hecha a medida para esquinas interiores y exteriores - Etsy México
image size: 1024x768
Qué madera usar para una nueva repisa de chimenea : r/woodworking
image size: 2560x1280
Cómo construir un techo falso para una chimenea de techo - IKO
image size: 1300x700
Qué es el tapajuntas de techo? - IKO Content Hub
image size: 1024x768
Materiales para su chimenea de exterior | Inspiración de diseño | Unilock
image size: 1080x1920
Hogar MAGNUM® de Isokern® y sistema de chimenea DM
image size: 1280x720
Cómo construir un techo falso para una chimenea de techo - IKO
image size: 960x1280
Conducto de Ventilación para Parrillas: Diseño y Funcionalidad
image size: 983x1311
¿COMO CONSTRUIR UNA ESTUFA REGULADORA DE HUMO ECOLÓGICA? BAJO CONSUMO DE LEÑA #WOODSTOVE #STOVE
image size: 1212x909
Hogar (fuego) - Wikipedia, la enciclopedia libre
image size: 2560x1280
Cocina De Leña De Ladrillo Con Chimenea | TikTok
image size: 1350x1350
Hogar STANDARD® de Isokern® y sistema de chimenea DM
Por qué necesita un dintel encima de su chimenea? - Ernest Maier
image size: 1000x1000
Cierre De Chimeneas De Ladrillo Con La Mejor Escena De Invierno Cubierta De Nieve Stock de ilustración - Ilustración de campo, exterior: 390672438
image size: 894x894
Sugerencias de color de pintura exterior con chimenea de ladrillo multicolor, ¡ayuda por favor! : r/ExteriorDesign
image size: 1026x868
Cómo pintar una chimenea de ladrillo con vapor de agua - Art Fireplace
image size: 768x1024
Pleasant Hearth AR-1020 Arrington - Puerta De Cristal Para Chimenea, Color Negro, Pequeña : Dycke, Jerry \u0026
image size: 2250x3000
APENDICE AS CONSTRUCCION CON PACAS DE PAJA - 2021 INTERNATIONAL RESIDENTIAL CODE SPANISH EDITION (IRC)
image size: 3000x1688
Construcción de Piques y Chimeneas | PDF | Chimenea | Túnel
image size: 1600x1295
Plano de chimenea de patio - Etsy México
image size: 1600x1157
Plano de chimenea de patio - Etsy México
image size: 1080x1080
Hogar MAGNUM® de Isokern® y sistema de chimenea DM
image size: 3072x4080
Construcción De Chimeneas De Ladrillo Reparación De Techo Mejora Del Hogar Imagen de archivo - Imagen de paisaje, trabajador: 378811503
image size: 1536x1024
Chimenea en el techo foto de archivo. Imagen de fondo - 186413150
image size: 4000x3000
Chimeneas El Fogon - Construccion chimenea a leña exterior en MAMPOSTERÍA ladrillo ala vista 3142650644 Bogota | Facebook
image size: 1600x1200
Dijeron que costaría 10k cambiarla por una estufa de leña y no entendemos por qué. : r/woodstoving
image size: 3000x2250
Plano de chimenea de patio - Etsy México
image size: 3264x2448
Sugerencias de color de pintura exterior con chimenea de ladrillo multicolor, ¡ayuda por favor! : r/ExteriorDesign
image size: 1494x1080
Masonry Services Near Me #1 Expert Brick \u0026 Stone Work
image size: 3072x4080
Plano de chimenea de patio - Etsy México
image size: 1024x768
Instrucciones de instalación y funcionamiento Chimenea exterior de la Edad de Piedra 1.0 Introducción 2.0 Descripción
image size: 1001x1001
Instrucciones de instalación y funcionamiento Chimenea de interior de la Edad de Piedra
image size: 3108x2824
Ideas para revestir tu chimenea | Chimeneas MDV
image size: 1067x1690
Dijeron que costaría 10k cambiarla por una estufa de leña y no entendemos por qué. : r/woodstoving
image size: 768x1024
Cómo construir un techo falso para una chimenea de techo - IKO
image size: 842x942
Cepillos Limpia Chimeneas Rutland Products - Cepillo Cuadrado Para Chimenea, 25,4 Cm, 1 Pieza Cepillo De Alambre Para Taladro
image size: 1024x1536
Guía de instalación del inserto de madera MONTP-II-CB Montpelier II
image size: 768x1024
Chimenea Del Ladrillo Del Vintage Foto de archivo - Imagen de sitio, sucio: 28836142
image size: 1080x1920
Tabla Medidas Chimenea | PDF
image size: 1080x1595
Manual de instrucciones de la chimenea de gas con ventilación directa KOZY HEAT NDK-48-DV
image size: 1600x1130
Plano de chimenea de patio - Etsy México
image size: 1180x752
Estufa Rusa Paso A Paso Rivera-1 | PDF | Hogar, jardinería y bricolaje
image size: 1518x936
Reparación y mantenimiento de chimeneas en el centro oeste de Florida - Clean Air Pros Florida
image size: 1920x1080
Todo sobre la mampostería: Técnicas y aplicaciones
image size: 2500x2500
Chimenea De Ladrillo Libera Humo Contra Fondo Azul Del Cielo. El Humo Surge De La Contaminación Del Aire Por El Trabajo De Ladrill Foto de archivo - Imagen de global, quema: 385466082
image size: 1600x1290
Hogar STANDARD® de Isokern® y sistema de chimenea DM
image size: 1920x1080
Manual de instrucciones de la chimenea de esquina empotrada a leña MAJESTIC B36LA
image size: 1080x1080
PACIFIC ENERGY SERIAL Summit Insert LE Wood Insert Manual de instrucciones
image size: 768x1024
Dur aCh imn ey ii
image size: 1485x1080
Guia para el Control de la Humedad en el Diseno, Construccion y Mantenimiento de Edificaciones