Do I Have Space for a Kitchen Island? (And Other Kitchen Island Questions) – Board \u0026 Vellum
image size: 1521x1520
HOW TO DETERMINE THE BEST SIZE FOR A KITCHEN ISLAND — Tami Faulkner Design | Custom Floor Plans, Spatial and Interior Design Services in person and online
image size: 1800x3100
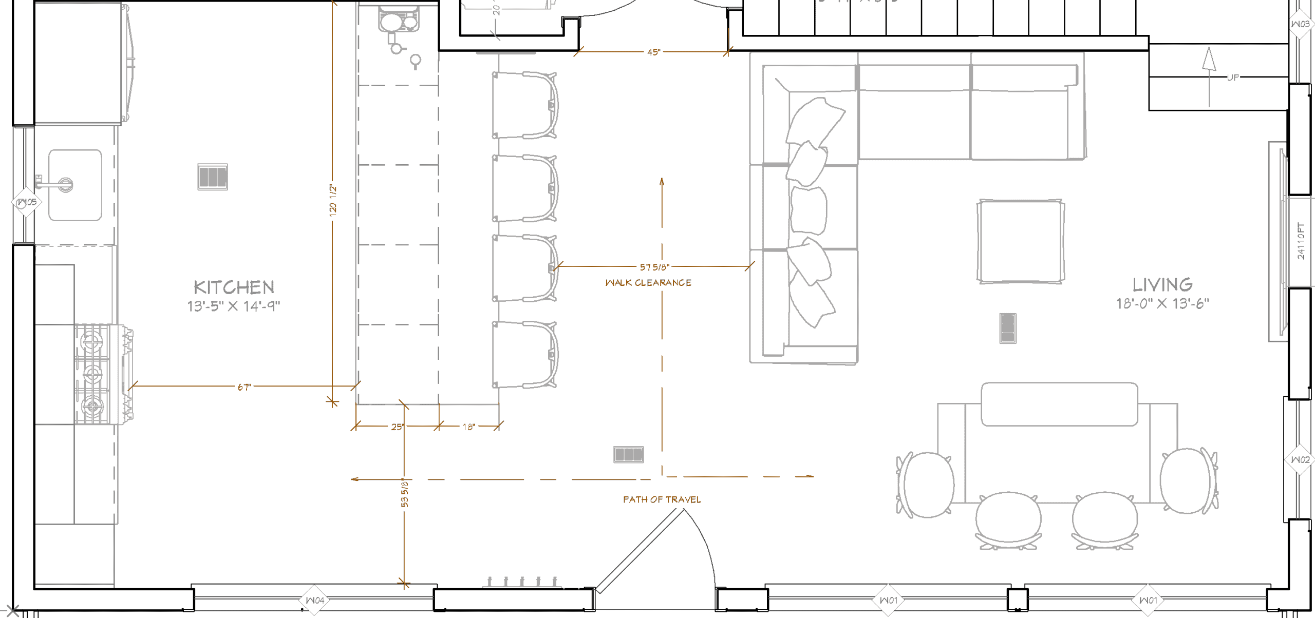
This is an architectural floor plan illustrating the layout and key dimensions of a kitchen. It's a top-down view showing the placement of appliances, cabinetry, a kitchen island, and a pantry. Kitchen
image size: 1439x1652
My Kitchen Layout and Cabinetry Dimensions - The Inspired Room
image size: 980x1307
OPTIMIZING A KITCHEN DESIGN: UNDERSTANDING LAYOUT, ISLAND SIZE, AND APPLIANCE PLACEMENT — Tami Faulkner Design | Custom Floor Plans, Spatial and Interior Design Services in person and online
image size: 1800x3200
Kitchen and Dining Area Measurements \u0026 Standards Guide
image size: 1920x1920
What size kitchen island to choose?
image size: 1010x985
Help with kitchen island dimensions : r/kitchenremodel
image size: 1053x919
Help with kitchen island dimensions : r/kitchenremodel
image size: 640x1387
Pin by Suzette Richardson on Kitchen remodel | Kitchen remodel layout, Kitchen layout plans, Kitchen design
image size: 736x1182
Kitchen Island Dimensions: Essential Size Guide [January 2026]
image size: 1647x1014
How to Determine the Right Kitchen Island Dimensions | 2025 | Fixr.com
image size: 1540x1250
What is the best orientation for a kitchen island?
image size: 1143x1286
Multipurpose Kitchen Islands - Fine Homebuilding
image size: 1200x903
55+ Kitchen Cabinet Door Sizes Standard - Best Kitchen Cabinet Ideas Check more at http://www.planetgreenspot.com/99-kitchen-cabinet-door-sizes -standard-kitchen-island-countertop-ideas/
image size: 1676x1206
Kitchen Spacing Rules and Distances
image size: 1500x1000
Kitchen Island- Size and Position
image size: 990x842
Kitchen Island vs Peninsula: Which Layout is Best for Your Home? — DESIGNED
image size: 2087x1592
What to Consider When Adding a Kitchen Island | Improveit
image size: 1000x1000
One-wall kitchen inspiration : r/kitchenremodel
image size: 1048x874
Kitchen Island Dimensions Guide 2025: Perfect Fit for Every Kitchen
image size: 1024x1024
Kitchen Island Dimensions Guide 2025: Perfect Fit for Every Kitchen
image size: 2560x1397
How far out should the kitchen island be? : r/floorplan
image size: 1024x1024
Medium rectangular kitchen layouts and floor plan ideas.
image size: 1668x2388
4 Kitchen Layouts Templates for Interior Designers | Rayon
image size: 1200x960
Island Kitchen Layout: 21+ Design Ideas and Tips
image size: 2048x1736
Universal 8 ft X 9.5 ft X 8 ft Ready To Finish U-Shaped Outdoor Kitchen System Appliance and Storage Cabinets W/Bars On 2 Full Sides : BBQGuys
image size: 2200x1450
Rectangular kitchen layouts and floor plan ideas.
image size: 4400x3401
Commercial Kitchens | ARCH3510 Spring 2019 Afternoon
image size: 1200x966
Stylish L-Shaped Kitchen With Island
image size: 892x1200
Kitchen and Dining Area Measurements \u0026 Standards Guide
image size: 1000x833
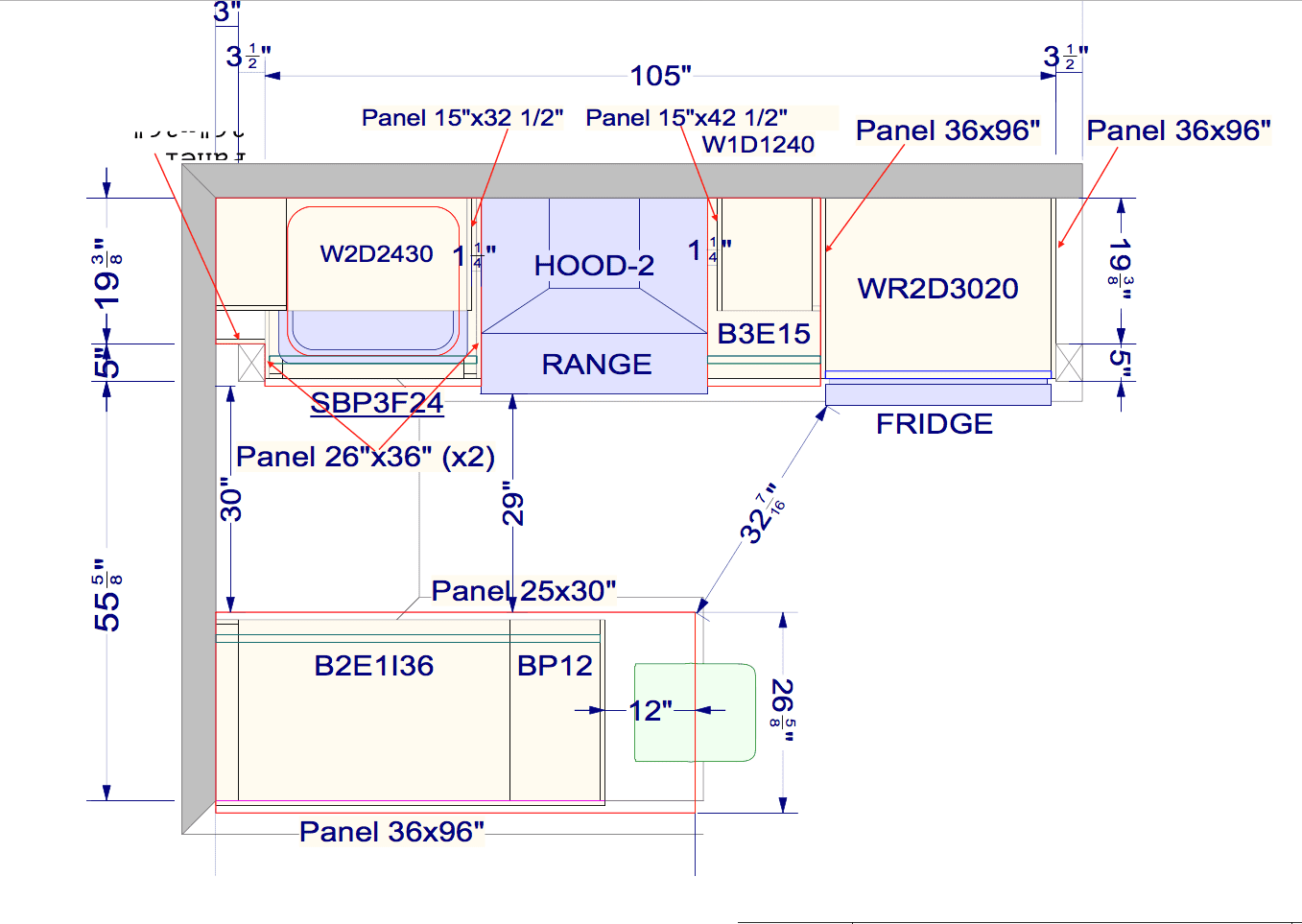
Kitchen Design Part 2 - Elevations, Dimensions \u0026 Islands
image size: 1024x1024
Measurement Tips — cypress kitchen \u0026 bath
image size: 1920x1080
One-Wall Kitchen Layouts: 17+ Design Ideas and Tips
image size: 1384x1072
L Shaped Kitchen: Great Design Ideas From an Expert Architect
image size: 1650x1000
Kitchen layout feedback : r/floorplan
image size: 970x876
Kitchen Floor Plan Guide: Layouts, Tools, Designs \u0026 Tips
image size: 3319x2539
How to Determine the Right Kitchen Island Dimensions | 2025 | Fixr.com