Plumb - This image is a detailed architectural diagram showing basement insulation details. It's a cross-section view illustrating how to properly insulate and waterproof a basement wall, from the foundation to the
image size: 1472x2008
Foundation Wall Assembly - AK House Project
image size: 1800x1800
This is a cross-section diagram of a foundation wall and floor system, illustrating a \
BSI-020: Wood Foundations - Picasso Does Foundations | buildingscience.com
image size: 4380x3544
Three Ways to Insulate a Basement Wall Like a Pro - Fine Homebuilding
image size: 1200x675
Building Guidelines Drawings. Section B: Concrete Construction
image size: 2730x1477
This image is a detailed cross-section diagram illustrating the construction of a building's foundation and exterior wall. Here's a breakdown of the components from the ground up and outwards: Foundation: * Concrete
image size: 1472x1544
Interior Foundation and Basement Retrofits | Interior Drainage
image size: 888x956
Exterior Basement Wall: 10 Proven Ways for Lasting Protection 2025
image size: 1024x1666
Basement Insulation Detail For Walls
image size: 892x892
Air Sealed, Insulated Basements | Building America Solution Center
image size: 927x1200
How To Waterproof a Brick Basement Foundation Wall
image size: 1280x1236
How Thick Should a Foundation Be? | Angi
image size: 2000x1650
Retrofitting Footings When Digging in an Old Basement - Fine Homebuilding
image size: 1200x675
This is a cross-section diagram of a foundation wall and floor system, illustrating a \
image size: 1472x1472
What Steel Brace Wall Reinforcement Can Do For Your Basement | Accurate Basement Repair
image size: 1054x1661
Wall Stabilization \u0026 Structural Repairs - Kansas City | Foundation 1
image size: 1395x1063
Spray Foam Interior Insulation for Existing Foundation Walls | Building America Solution Center
image size: 1125x1200
Three Types of Footings to Support Foundation Walls - Fine Homebuilding
image size: 1000x1000
What is a Stem Wall in Construction and When Do I Need One? | Healthy, High Performance ICF Building System | Faswall Blocks
image size: 1024x768
Creating Basements with Furred Walls - Video | Chief Architect
image size: 2560x1440
Slab on Grade Meets Partial Basement - GreenBuildingAdvisor
image size: 1000x1000
Do Basement Walls Need A Vapor Barrier?
image size: 1981x1659
Increase Seismic Resistance and Thermal Performance of Basement, Crawl Space, and Crawl Space with Cripple Wall Foundations | Building America Solution Center
image size: 2946x1249
Leaks In Your Basement Walls and Floors? It's About Drainage
image size: 2500x1315
Basement Wall Cracks: Stop the Leak, Save Your Sanity - Basement Waterproofing Scientists
image size: 1024x1666
Know Your House: The Steps in Finishing a Basement
image size: 1636x1274
Leaks In Your Basement Walls and Floors? It's About Drainage
image size: 2500x1969
How to Frame a Basement YOURSELF | Complete Guide
image size: 1280x720
Foundation Wall Thickness Based on Walls Supported | UpCodes
image size: 1931x2696
Know Your House: What Makes Up a Home's Foundation
Leaks In Your Basement Walls and Floors? It's About Drainage
image size: 1280x1789
a detailed cross-section diagram of a typical residential foundation and basement wall assembly, illustrating how a basement is waterproofed and drained. Here is a detailed description of the components and their functions:
image size: 2048x1650
Vented Attic, 2x4 Wall, Interior Insulated Basement | Building America Solution Center
image size: 1785x3135
how to waterproof exterior foundation wall: 7 Powerful Proven Steps 2025
image size: 1024x1666
Is this steel layout excessive for basement walls?
image size: 808x1290
Do Basement Walls Need A Vapor Barrier?
image size: 1280x1701
Foundation Wall Construction: Step-by-Step | ArchitectureCourses.org
image size: 1536x1024
Inspecting Foundation Dampproofing and Waterproofing (IRC® R406) - InterNACHI®
image size: 1200x1473
Is this design sufficient for finishing a split level block foundation wall? : r/DIY
image size: 1426x873
Building Guidelines Drawings. Section B: Concrete Construction
image size: 2934x1913
Dimple Boards: Your Foundation's Best Friend Against Moisture - Basement Waterproofing Scientists
image size: 1536x1024
Garage Foundation Guide: Choosing the Right Base for Your Colorado Build - Vertical Contracting
image size: 1224x816
Our Home Foundations (FPSF) vs. Typical Foundations — Backyard ADUs
image size: 2500x1667
Basement Waterproofing - MA and RI - Drycrete Waterproofing
image size: 2560x1457
Basement Weep Holes: How They Work And Why
image size: 1024x853
CHAPTER 4 FOUNDATIONS - 2018 VIRGINIA RESIDENTIAL CODE
image size: 1171x1258
Something You Need to Know About: Foundations (Part 1)
image size: 1439x1500
Retaining Wall vs Basement Wall Extension Graphics - InterNACHI®️ Forum
image size: 1920x1440
how to waterproof exterior foundation wall: 7 Powerful Proven Steps 2025
image size: 1536x1154
Foundation Repair Underpinnings Shop Drawing
image size: 1404x1078
Backfilling Basics: Backfilling the Wrong way Often Costs More than Doing it Right : Concrete Facts Magazine Online
image size: 1138x2560
3 Types of Basement Waterproofing \u0026 What's Best
image size: 1584x1224
Three Ways to Insulate Basement Walls - Fine Homebuilding
image size: 1200x675
concrete - How are grade-level garage slabs typically connected to a basement wall? - Home Improvement Stack Exchange
image size: 1532x805
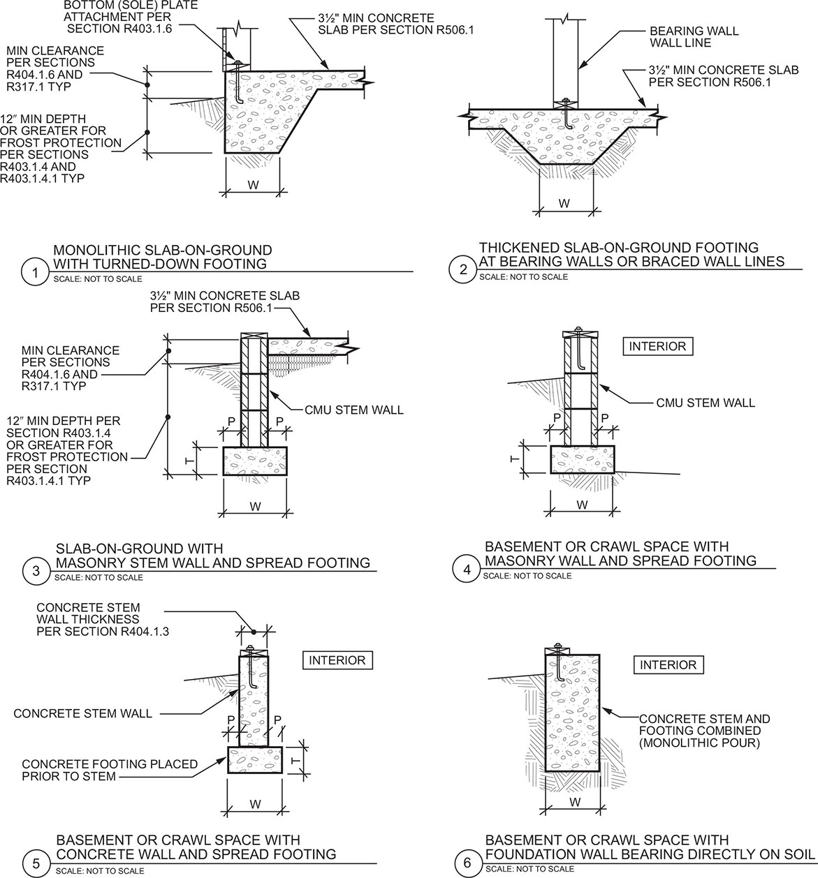
Concrete Slab Foundations: Monolithic and Stem Wall - CCPIA
image size: 2048x1236
7 Causes and 3 Fixes for Basement Walls Bowing In | ArchitectureCourses.org
image size: 1536x1024
Residential addition, foundation strengthening req'd (sketch) : r/StructuralEngineering
image size: 2184x1684
Excavationless Exterior Foundation Insulation Exploratory Study
image size: 1224x1584
NB Superinsulated House: MAISON GRANDE-DIGUE HOUSE - Foundation
image size: 2500x1932
Truth or myth: Do we really need basements in Maine? | Green \u0026 Healthy Maine HOMES
image size: 1200x675
Adding on to a Stone Foundation - Fine Homebuilding
image size: 2048x1747
Hydrostatic pressure causes basement leaks
image size: 1600x1105
Exterior Foundation Waterproofing | AAA Solid Foundation Regina
image size: 1373x761
Wall Stabilization \u0026 Structural Repairs - Kansas City | Foundation 1
image size: 1462x1134
Below grade application
image size: 1150x834
Section Detail - Foundation Wall and Strip Footing Detail (8) | Images :: Behance
image size: 800x1337
How to Frame a Basement Wall (Easy DIY Guide with Pictures) - AT Improvements
image size: 1150x889
How to Insulate my Basement Walls - Spray Foam insulation NYC
image size: 850x1026
Base of Wall Detail - Anchored Brick Veneer | International Masonry Institute
image size: 2048x1152
Basement Walls Parging Concrete Foundation Brick Wall Skim Coat Interior Concrete Wall Stone Foundation Skim
image size: 949x1051
Why Basements and Foundations Leak - Arbor Foundation \u0026 Leak Repair - Ann Arbor, MI
image size: 2074x2143
A Solid, Well-Insulated Foundation - Fine Homebuilding
image size: 886x1920
Crushed Stone Footings for Cast-in-Place Concrete Foundations | UpCodes
image size: 3909x3738
Basement walls - insulation and framing | DIY Home Improvement Forum
image size: 750x1334
Wall Bracing - Foundation Guy Inc.
image size: 1500x2025
insulation - My basement wall is adjacent to a filled foundation. Is there any point in insulating? - Home Improvement Stack Exchange
image size: 2704x1842
26 Underpinning ideas | underpinning, basement, basement construction
image size: 1116x1155
Platon Foundation Waterproofing: Guide to Dimpled Membrane Wrap for Dry Basements - Spycor Environmental
image size: 1080x850
B097 - Stone Foundation Wall - Covered Bridge Professional Home Inspections
image size: 900x900
Minimizing Concrete in a Slab-on-Grade Home - Fine Homebuilding
image size: 1200x800
Drainage Boards and Footing Drains | WATERPROOF! Magazine
image size: 1600x1280
15 Different Types of House Foundations That Lay the Groundwork for Solid Construction
image size: 1067x860
Foundation wall with 2\
image size: 1280x1280
11 Underpinning ideas | underpinning, waterproofing basement, foundation repair
image size: 1366x928
Basement Underneath Existing Dwelling (Dig out)
image size: 1352x900
Homeowner's Guide on Concrete Foundation Cracks | US-BES
image size: 1200x725
Block Foundation Corners
image size: 1200x677
Basement Finishing: Don't Forget Waterproofing
image size: 1100x725
Dry Stone Wall Foundations | gravel or bury a course?
image size: 2917x2709
Blog - :Designed Happy
image size: 1999x1315
Notebook on Basement Assembly · Bellrise Farm
image size: 900x900
High-Performance Crawlspace Foundations
image size: 1024x952
9 Affordable Ways to Dry Up Your Wet Basement For Good, Water damage in Woodbury NJ, Water damage in Deptford NJ, | Gloucester Township, NJ Patch
image size: 1859x1208
Concrete Foundation – Dream team
image size: 1600x1280
Cracked Basement Wall Inspections in Metro Detroit \u0026 SE Michigan